
107 Fairview East Greenfield, MA 01301
2.5 Acres Lot
UPDATED:
Key Details
Property Type Vacant Land
Sub Type Residential
Listing Status Active
Purchase Type For Sale
MLS Listing ID 73422365
HOA Y/N false
Annual Tax Amount $7,476
Tax Year 2025
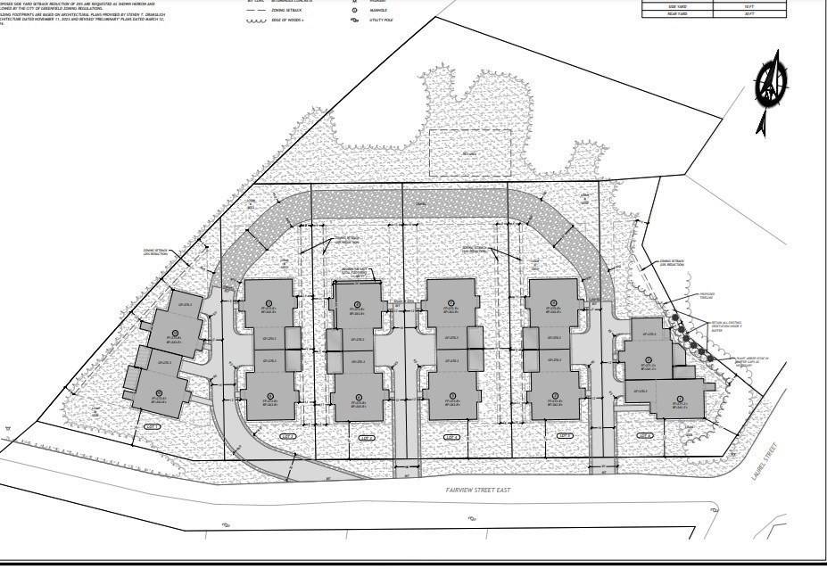
Lot Size 2.500 Acres
Acres 2.5
Property Sub-Type Residential
Property Description
Location
State MA
County Franklin
Zoning RA
Direction I-91 Rotary, Rt 2A, River Street, Laurel Street, Fairview Street East [ on right ]
Exterior
Community Features Public Transportation, Shopping, Pool, Tennis Court(s), Park, Walk/Jog Trails, Golf, Medical Facility, Laundromat, Bike Path, Highway Access, House of Worship, Private School, Public School
Waterfront Description Beach Access,River,1 to 2 Mile To Beach,Beach Ownership(Public)
Building
Lot Description Level, Corner Lot, Irregular Lot, Cleared, Gentle Sloping, Lot Staked
Sewer Public Sewer, At Street
Water Public, At Street
Schools
Elementary Schools Newton Or Private
Middle Schools City Gms Or Private
High Schools City Ghs Or Private
Others
Senior Community false
Virtual Tour https://youtu.be/GA0NIjs-e0k






